Negozio in vendita

Roma, Viale Cesco Baseggio - Casale Nei
€ 175.000
4 locali 4 locali
100 Mq 100 Mq
2 bagni 2 bagni

Negozio in vendita

Roma, Viale Cesco Baseggio - Casale Nei

Descrizione annuncio

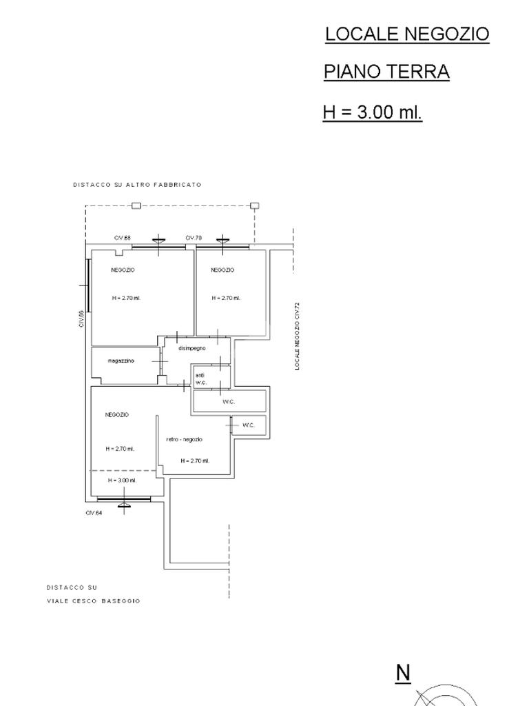
CASALE NEI / PORTE DI ROMA - LOCALE COMMERCIALE

Proponiamo in vendita un locale commerciale categoria C/1 situato nel quartiere Casale Nei / Porte di Roma, su Viale Cesco Baseggio, con una vetrina fronte strada e tre retrostanti, che garantiscono una buona illuminazione naturale. L’immobile si sviluppa al piano terra, con accesso diretto da strada tramite serranda elettrica.

La superficie è di circa 95 mq, attualmente suddivisa in più ambienti funzionali, tutti in ottime condizioni interne. Sono presenti due servizi igienici e un piccolo magazzino sullo stesso livello. Completano la proprietà due posti auto condominiali assegnati in uso esclusivo all’unità. L’immobile consente un agevole carico e scarico merci anche indipendentemente dall’utilizzo dei posti auto. La disposizione degli spazi si presta ad ospitare diverse tipologie di attività commerciali e di servizi.

La posizione è strategica per chi necessita di collegamenti agevoli: il locale si trova a pochi minuti dal Grande Raccordo Anulare ed è ben connesso alle principali arterie stradali della zona nord di Roma. Il contesto urbano è consolidato e caratterizzato dalla presenza di varie attività e servizi di quartiere, elemento che rende l’unità adatta a chi cerca una soluzione commerciale in un’area già organizzata e facilmente raggiungibile.

Contattaci per ricevere ulteriori informazioni e per fissare una visita!

Sito in Viale Cesco Baseggio
Classe Energ. G. Euro 175.000,00
INFO TECNOCASA VIALE VAL PADANA 78/80

06/6926754

Mostra tutto

Nelle vicinanze

Trasporto pubblico Trasporto pubblico
Jonio
Jonio
2,4 Km
Nuovo Salario
Nuovo Salario
2,3 Km
Fidene
Fidene
2,3 Km
Imer
Imer
90 m
Soldati/Amendola
Soldati/Amendola
100 m
Ricariche auto elettriche Ricariche auto elettriche
IKEA Porta di Roma
920 m
Enel X Casal Boccone
1,6 Km
Gallo Capitale Pizza E Grill
2,5 Km
Scuole Scuole
Marco Simoncelli
730 m
Scuola Rina De Liguoro
770 m
Scuole
840 m
Scuola Santa Maria Ausiliatrice
960 m
Suola Materna e Primaria Paritaria Maria Ausiliatrice
970 m
Farmacia Farmacia
Farmacia
60 m
Piramide
570 m
Morelli Simonetta
1,1 Km
Ateneo
1,2 Km
Farmacia Dott. Valentini
1,4 Km
Supermercati Supermercati
Unicoop Tirreno
410 m
Lidl
600 m
Emme Più
720 m
Supermercati
900 m
Tigre
970 m
Negozi Negozi
Bernardi
910 m
Forno Aurea
1,1 Km
Celiachia Store
1,2 Km
Alimentari Campisano
1,4 Km
Pane Pasta all'uovo
1,4 Km
Bar Bar
Il Break Del Paradiso
1,4 Km
Australian Bar
1,4 Km
Caffè In Piazza
1,7 Km
Billions
2,4 Km
Effe Effe Wine Bar
2,9 Km
Ristoranti Ristoranti
Le Due Lune
10 m
Fu Yun
180 m
Panizzeri
350 m
Izakaya
550 m
El dorado
570 m
Mostra tutto

Caratteristiche

Rif.:
61143160
Piano:
Terra di 5
Totale piani:
5
Posti auto:
2
Condizionamento:
Autonomo
Ascensore:
No
Mostra tutto
Prezzo Prezzo
€ 175.000
Rata mutuo Rata mutuo
€ 826 / mese
Proponi il tuo prezzoProponi il tuo prezzo

Altre caratteristiche

Descrizione dei locali
Bagno Con Finestra

Classe Energetica

G
G
G
G
G
G
G
G
G
EP globale non rinnovabile:
180.00 kW h/m² anno
EP globale rinnovabile:
180.00 kW h/m² anno
EP invernale del fabbricato:
EP estiva del fabbricato:
Anno di costruzione:
1990
Riscaldamento:
Autonomo
Tipo impianto:
Ad aria
Tipo alimentazione:
Aria

Ti interessa visionare l'immobile?

Fissa un appuntamento  Fissa un appuntamento

Richiedi informazioni

Clicca su Leggi per aprire l'informativa
* Questi campi sono obbligatori

Calcola il tuo mutuo

Semplice e senza impegno
Anticipo

( % )
Mutuo

( % )

pochi semplici passi

inserisci i tuoi dati
Questionario completato
Grazie per aver richiesto un appuntamento senza impegno con un nostro Consulente del Credito e Assicurativo.

Hai inserito correttamente tutti i dati necessari e a breve riceverai una e-mail con un link da convalidare per inviare i tuoi dati.
Affiliato
Immobili Commerciali Jonio Srl
Viale Val Padana, 78/80 00141 Roma (RM)
Viale Val Padana, 78/80 00141 Roma (RM)
Zona: Jonio-Conca D'Oro-Talenti-Montesacro-Trieste-Africano-Salario-Nomentana
Mostra su mappa
Orari: Lun - Ven : 09:00/19:30 Sab : 09:00/13:00
Affiliato
Immobili Commerciali Jonio Srl
Viale Val Padana, 78/80 00141 Roma (RM)

2025 Tecnocasa Franchising S.p.A. - P. IVA 08365160152 - Via Monte Bianco 60/A 20089 Rozzano (MI). Ogni agenzia ha un proprio titolare ed è autonoma. Privacy policy | Policy utilizzo | Cookie policy