Negozio in affitto

Roma, Via Radicofani - Borgata Fidene
€ 1.250 / mese
1 locale 1 locale
55 Mq 55 Mq
1 bagno 1 bagno

Negozio in affitto

Roma, Via Radicofani - Borgata Fidene

Descrizione annuncio

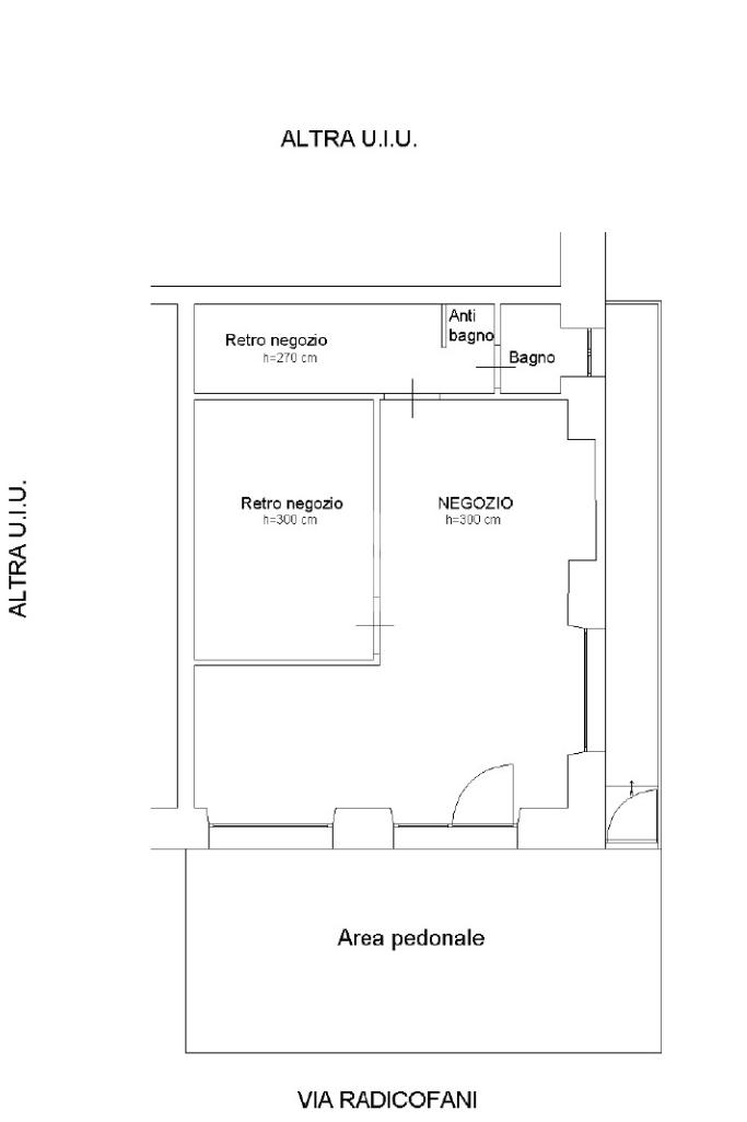
ROMA – FIDENE – VIA RADICOFANI – LOCALE COMMERCIALE IN LOCAZIONE

Proponiamo in locazione un locale commerciale situato a Roma, in Via Radicofani, zona Fidene, in uno dei tratti più movimentati e serviti del quartiere.

L’immobile gode di un’eccellente visibilità grazie alla presenza di tre vetrine angolari su strada, che assicurano un’ottima esposizione e valorizzano fortemente la presenza dell’attività all’interno del contesto commerciale circostante.

Internamente il locale si presenta in ottime condizioni, con ambienti curati, ordinati e immediatamente utilizzabili. La disposizione interna è funzionale e ben organizzata: l’immobile è attualmente suddiviso in due ambienti principali, di cui uno adibito a ufficio e l’altro composto da un’ampia sala con reception; completano la proprietà un piccolo retronegozio e un servizio.

La combinazione tra posizione, esposizione angolare e stato interno rende il locale una soluzione di particolare interesse per chi desidera avviare o trasferire la propria attività in un immobile già ben presentato, senza necessità di interventi rilevanti e con spazi facilmente adattabili a diverse esigenze.

Contattaci per ricevere ulteriori informazioni e per fissare una visita!

Sito in Via Radicofani
Classe Energ. G. Euro 1.250,00
INFO TECNOCASA VIALE VAL PADANA 78/80

06/6926754

Mostra tutto

Nelle vicinanze

Trasporto pubblico Trasporto pubblico
Fidene
Fidene
890 m
Saxa Rubra
Saxa Rubra
1,8 Km
Radicofani/Capannori
Radicofani/Capannori
50 m
Russolillo/Vocazionisti
Russolillo/Vocazionisti
160 m
Stazione di Nuovo Salario
Stazione di Nuovo Salario
1,9 Km
Ricariche auto elettriche Ricariche auto elettriche
Eneldrive Saxa Rubra
1,7 Km
Gallo Capitale Pizza E Grill
1,7 Km
IKEA Porta di Roma
2,1 Km
Scuole Scuole
Scuole
300 m
Istituto Comprensivo Fidenae
360 m
Istituto Comprensivo Carlo Levi
680 m
IIS Pacinotti-Archimede - succursale
1,1 Km
Scuola Media Statale Carlo Levi
1,3 Km
Farmacia Farmacia
Farmacia Calvani
20 m
Farmacia Florio
370 m
Farmacia Parco delle Sabine
700 m
Morelli Simonetta
920 m
Farmacia Pianesi
1,1 Km
Ospedali Ospedali
San Raffaele Flaminia - Residenza Sanitaria Assitenziale
2,7 Km
Supermercati Supermercati
Conad
170 m
Idromarket
390 m
Decó
420 m
Tuodì
700 m
Il Castoro
790 m
Negozi Negozi
Pan di casa
30 m
Alimentari
40 m
Pane Pasta all'uovo
150 m
Minimarket
220 m
Kaotica
1,0 Km
Bar Bar
Billions
1,8 Km
Australian Bar
2,9 Km
Il Break Del Paradiso
2,9 Km
Ristoranti Ristoranti
Ristorante Hao Xiang Ni
60 m
Ristorante Amatrice
740 m
I Cavalieri
810 m
‘nduja bufala e pachino
920 m
Pizzeria La Stella
1,1 Km
Mostra tutto

Caratteristiche

Rif.:
61211925
Piano:
Terra di 5
Totale piani:
5
Condizionamento:
Autonomo
Ascensore:
No
Riscaldamento:
Assente
Mostra tutto
Prezzo Prezzo
€ 1.250 / mese

Altre caratteristiche

Classe Energetica

G
G
G
G
G
G
G
G
G
EP globale non rinnovabile:
180.00 kW h/m² anno
EP globale rinnovabile:
180.00 kW h/m² anno
EP invernale del fabbricato:
EP estiva del fabbricato:
Anno di costruzione:
1950
Riscaldamento:
Assente

Ti interessa visionare l'immobile?

Fissa un appuntamento  Fissa un appuntamento

Richiedi informazioni

Clicca su Leggi per aprire l'informativa
* Questi campi sono obbligatori
Affiliato
Immobili Commerciali Jonio Srl
Viale Val Padana, 78/80 00141 Roma (RM)
Viale Val Padana, 78/80 00141 Roma (RM)
Zona: Jonio-Conca D'Oro-Talenti-Montesacro-Trieste-Africano-Salario-Nomentana
Mostra su mappa
Orari: Lun - Ven : 09:00/19:30 Sab : 09:00/13:00
Affiliato
Immobili Commerciali Jonio Srl
Viale Val Padana, 78/80 00141 Roma (RM)

2026 Tecnocasa Franchising S.p.A. - P. IVA 08365160152 - Via Monte Bianco 60/A 20089 Rozzano (MI). Ogni agenzia ha un proprio titolare ed è autonoma. Privacy policy | Policy utilizzo | Cookie policy