Negozio in affitto

Roma, Corso Trieste - Trieste Annibaliano
€ 1.900 / mese
1 locale 1 locale
40 Mq 40 Mq
1 bagno 1 bagno

Negozio in affitto

Roma, Corso Trieste - Trieste Annibaliano

Descrizione annuncio

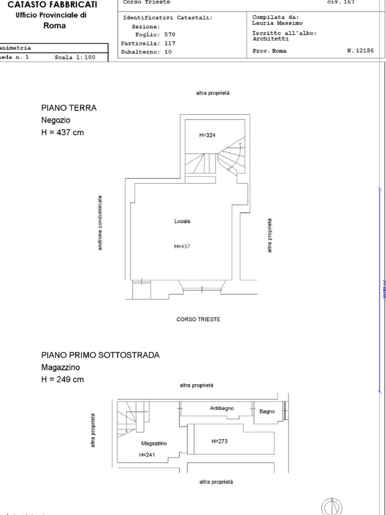
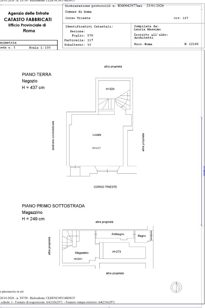
LOCALE COMMERCIALE - TRIESTE/AFRICANO

Nel cuore di Corso Trieste, in posizione di grande passaggio poco prima di Piazza Istria, proponiamo in locazione un locale commerciale che unisce visibilità, praticità e buona distribuzione degli spazi, ideale per chi cerca un punto operativo in una delle aree più dinamiche di Roma.

L’immobile sviluppa una superficie complessiva di circa 60 mq, di cui 40 mq al piano terra e circa 20 mq di sottonegozio ad uso magazzino. Il piano terra è organizzato in due ambienti: una zona principale, perfetta come area accoglienza/esposizione, e un angolo rialzato riservato, utile come spazio di supporto (corner espositivo o piccola postazione operativa).

Una scala interna conduce al piano sottonegozio, dove troviamo un comodo magazzino e il servizio, soluzione ideale per mantenere il piano terra sempre ordinato e valorizzare al massimo lo spazio commerciale principale.

La posizione, a ridosso di Piazza Istria, è uno dei punti di forza: contesto urbano consolidato, servizi e attività nelle immediate vicinanze e collegamenti eccellenti. Il locale è a pochi passi dalla Metro B1 Sant'Agnese/Annibaliano ed è servito da diverse fermate autobus nelle immediate vicinanze, garantendo facilità di accesso e un flusso costante di passaggio.

Contattaci per ricevere ulteriori informazioni e per fissare una visita!

Sito in Corso Trieste

Classe Energ. G.
Euro 1.900,00

INFO TECNOCASA VIALE VAL PADANA 78/80

Mostra tutto

Nelle vicinanze

Trasporto pubblico Trasporto pubblico
Sant'Agnese/Annibaliano
Sant'Agnese/Annibaliano
190 m
Libia
Libia
1,0 Km
stazione di Roma Nomentana
stazione di Roma Nomentana
1,3 Km
stazione di Roma Tiburtina
stazione di Roma Tiburtina
2,0 Km
Termini (MA-MB-FS)
Termini (MA-MB-FS)
2,8 Km
Ricariche auto elettriche Ricariche auto elettriche
Roma Istria | EnelX
70 m
LUISS University | EnelX
590 m
Roma Verbano | EnelX
590 m
Roma Via Fezzan | EnelX
1,1 Km
Roma Vescovio | EnelX
1,1 Km
Scuole Scuole
LUISS
230 m
Istituto San Leone Magno
310 m
Scuola Media Giuseppe Sinopoli (ex Massimo D'Azeglio)
340 m
Istituto privato San Leone Magno
370 m
I.C. Volsinio
370 m
Farmacia Farmacia
Farmacia
280 m
Farmacia Dottor Mancini
760 m
Farmacia Torlonia
840 m
Farmacia Alessandra Mazzantini
990 m
Ortopedia Ronconi
1,0 Km
Ospedali Ospedali
Centro Medicina Nucleare Italiano Villa Bianca
230 m
Casa di Cura "Assunzione di Maria Santissima"
570 m
Clinica Sanatrix
760 m
Clinica Privata
960 m
Policlinico Italia
1,1 Km
Supermercati Supermercati
Conad
80 m
Supermercati
270 m
Tigre
400 m
Punto Sma
620 m
Carrefour
710 m
Negozi Negozi
Super Casalinghi
150 m
Pizza al Suolo
360 m
Lady Chic
420 m
Negozi
500 m
Paris 2
600 m
Bar Bar
Bar
60 m
Crash Vibes & Wines
130 m
The Cotton Club
200 m
Ivy Food Music & Drink
250 m
Caffe' nemorense
300 m
Ristoranti Ristoranti
Pizzeria San Marino
30 m
T-Burger Station
130 m
Nonna Lia Panzerotti
130 m
Numbs Le Bistro
160 m
MAF
160 m
Mostra tutto

Caratteristiche

Rif.:
61171940
Piano:
Terra di 8
Totale piani:
8
Condizionamento:
Predisposizione impianto
Ascensore:
No
Riscaldamento:
Assente
Mostra tutto
Prezzo Prezzo
€ 1.900 / mese

Altre caratteristiche

Classe Energetica

G
G
G
G
G
G
G
G
G
EP globale non rinnovabile:
180.00 kW h/m² anno
EP globale rinnovabile:
180.00 kW h/m² anno
EP invernale del fabbricato:
EP estiva del fabbricato:
Anno di costruzione:
1950
Riscaldamento:
Assente

Ti interessa visionare l'immobile?

Fissa un appuntamento  Fissa un appuntamento

Richiedi informazioni

Clicca su Leggi per aprire l'informativa
* Questi campi sono obbligatori
Affiliato
Immobili Commerciali Jonio Srl
Viale Val Padana, 78/80 00141 Roma (RM)
Viale Val Padana, 78/80 00141 Roma (RM)
Zona: Jonio-Conca D'Oro-Talenti-Montesacro-Trieste-Africano-Salario-Nomentana
Mostra su mappa
Orari: Lun - Ven : 09:00/19:30 Sab : 09:00/13:00
Affiliato
Immobili Commerciali Jonio Srl
Viale Val Padana, 78/80 00141 Roma (RM)

2026 Tecnocasa Franchising S.p.A. - P. IVA 08365160152 - Via Monte Bianco 60/A 20089 Rozzano (MI). Ogni agenzia ha un proprio titolare ed è autonoma. Privacy policy | Policy utilizzo | Cookie policy