Negozio in affitto

Roma, Viale Eritrea - Trieste Africano
€ 4.500 / mese
1 locale 1 locale
110 Mq 110 Mq
2 bagni 2 bagni

Negozio in affitto

Roma, Viale Eritrea - Trieste Africano

Descrizione annuncio

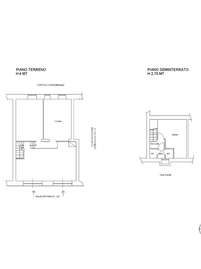
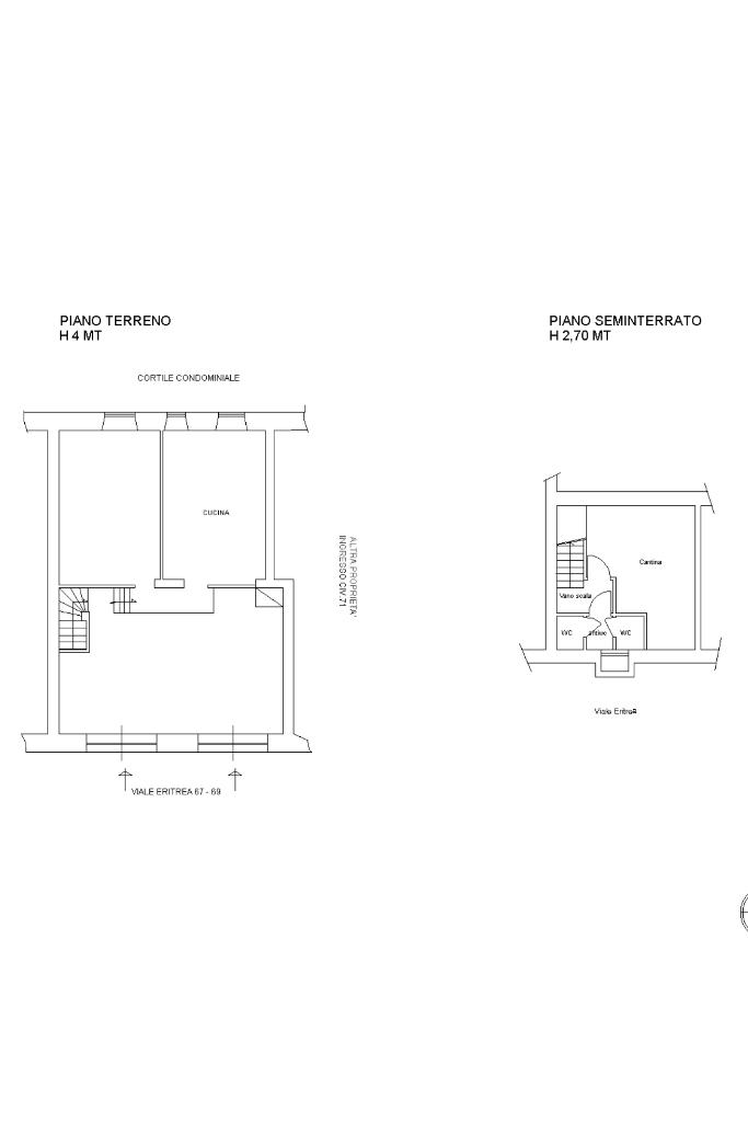
VIALE ERITREA - LOCALE COMMERCIALE CON DUE VETRINE

Splendida Opportunità Commerciale su Viale Eritrea!

Situato nel cuore del vivace quartiere Africano, questo locale commerciale offre una posizione invidiabile su Viale Eritrea, una delle arterie più frequentate della zona. Con un flusso costante di pedoni e veicoli, è il luogo ideale per avviare o espandere una attività commerciale.

Caratteristiche Principali:

Localizzazione Premium: Due vetrine su strada garantiscono massima visibilità e attrazione per i passanti.

Ampio Spazio: Con una generosa metratura di 90 mq al piano terra e ulteriori 25 mq di magazzino al piano seminterrato, avrai tutto lo spazio di cui hai bisogno per realizzare la tua visione imprenditoriale.

Canna Fumaria: Il locale è dotato di canna fumaria già installata.

Ideale per Ristorazione:

Con il suo ambiente spazioso e la presenza della canna fumaria, questo locale è perfettamente adatto per ospitare un accogliente ristorante, una caffetteria vivace o un bistrot alla moda.

Contattaci per ricevere ulteriori informazioni e per fissare una visita!

Sito in Viale Eritrea

Euro 4.500 + IVA

Classe G.
INFO TECNOCASA VIALE VAL PADANA 78/80

06/69267154

Mostra tutto

Nelle vicinanze

Trasporto pubblico Trasporto pubblico
Sant'Agnese/Annibaliano
Sant'Agnese/Annibaliano
300 m
Libia
Libia
630 m
stazione di Roma Nomentana
stazione di Roma Nomentana
920 m
Val d’Ala
Val d’Ala
1,6 Km
Eritrea/Lago Lesina
Eritrea/Lago Lesina
30 m
Ricariche auto elettriche Ricariche auto elettriche
Roma Istria | EnelX
460 m
Roma Via Fezzan | EnelX
760 m
Roma Vescovio | EnelX
760 m
Roma Verbano | EnelX
840 m
Roma Viale Somalia 260 | EnelX
860 m
Scuole Scuole
Scuola Ugo Bartolomei
170 m
Scuola Media Giuseppe Sinopoli (ex Massimo D'Azeglio)
190 m
Scuola Elementare Ugo Bartolomei
210 m
Liceo scientifico Amedeo Avogadro succursale
460 m
Marymount
520 m
Farmacia Farmacia
Farmacia
160 m
Farmacia San Stanislao
820 m
Farmacia Alessandra Mazzantini
940 m
Farmacia Dottor Mancini
980 m
Ortopedia Ronconi
1,0 Km
Ospedali Ospedali
Centro Medicina Nucleare Italiano Villa Bianca
300 m
Clinica Sanatrix
420 m
Casa di Cura "Assunzione di Maria Santissima"
960 m
Clinica Privata
1,3 Km
Policlinico Italia
1,3 Km
Supermercati Supermercati
Tigre
10 m
Conad
410 m
Biopolis - Organic Food
410 m
Supermercati
550 m
Il castoro
730 m
Negozi Negozi
Lady Chic
30 m
Pizza al Suolo
40 m
Negozi
100 m
Gatti Tortellini
290 m
Marinari
290 m
Bar Bar
Di Persio
0 m
Bar
170 m
Caffe' nemorense
420 m
Crash Vibes & Wines
530 m
The Cotton Club
570 m
Ristoranti Ristoranti
Zen fusion
10 m
Ristoranti
90 m
Gian Gusto
130 m
Is Arenas
370 m
Pizzeria San Marino
410 m
Mostra tutto

Caratteristiche

Rif.:
61133593
Piano:
Terra di 7
Totale piani:
7
Condizionamento:
Assente
Ascensore:
No
Riscaldamento:
Assente
Mostra tutto
Prezzo Prezzo
€ 4.500 / mese

Altre caratteristiche

Descrizione dei locali
Bagno Con Finestra

Classe Energetica

G
G
G
G
G
G
G
G
G
EP globale non rinnovabile:
180.00 kW h/m² anno
EP globale rinnovabile:
180.00 kW h/m² anno
EP invernale del fabbricato:
EP estiva del fabbricato:
Anno di costruzione:
1950
Riscaldamento:
Assente

Ti interessa visionare l'immobile?

Fissa un appuntamento  Fissa un appuntamento

Richiedi informazioni

Clicca su Leggi per aprire l'informativa
* Questi campi sono obbligatori
Affiliato
Immobili Commerciali Jonio Srl
Viale Val Padana, 78/80 00141 Roma (RM)
Viale Val Padana, 78/80 00141 Roma (RM)
Zona: Jonio-Conca D'Oro-Talenti-Montesacro-Trieste-Africano-Salario-Nomentana
Mostra su mappa
Orari: Lun - Ven : 09:00/19:30 Sab : 09:00/13:00
Affiliato
Immobili Commerciali Jonio Srl
Viale Val Padana, 78/80 00141 Roma (RM)

2026 Tecnocasa Franchising S.p.A. - P. IVA 08365160152 - Via Monte Bianco 60/A 20089 Rozzano (MI). Ogni agenzia ha un proprio titolare ed è autonoma. Privacy policy | Policy utilizzo | Cookie policy